양산마사지샵 오픈, 인테리어 설계 실패 없이 하는 법
마사지샵 인테리어 설계, 동선부터 조명까지 실무 경험으로 배우기
신축 상가에 마사지샵을 오픈하려는데 어디서부터 시작해야 할지 막막하신가요? 7개 베드 기준의 실제 프로젝트를 통해 고객 동선, 직원 편의성, 브랜드 이미지를 모두 고려한 인테리어 계획 과정을 소개합니다. 공간 분할부터 조명 설계까지, 마사지샵 운영 효율을 높이는 실무 노하우를 정리했습니다.
마사지샵 인테리어의 첫 단계, 공간 계획과 동선 설계
마사지샵 인테리어를 시작할 때 가장 많은 사업주분들이 "예쁜 디자인을 먼저 생각하겠다"고 말씀하세요. 하지만 실제로 현장에 가보면 이야기가 달라져요. 저도 양산 물금 오아시스 건물 1층의 신축 빈 상가에서 처음 마주친 게 바로 그 고민이었습니다.
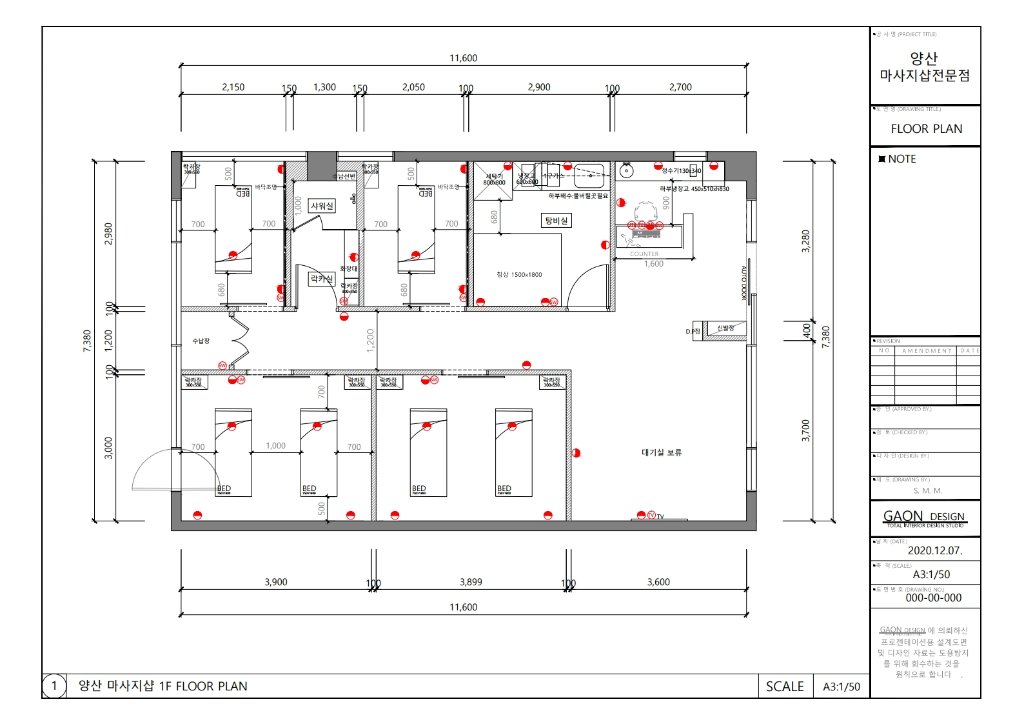
사장님이 건네주신 건 간단한 손그림 메모지였어요. "7개의 베드가 필요하고, 1인 샤워실도 있으면 좋겠어요"라는 요구사항이 전부였죠. 하지만 4m × 6m 규모의 빈 콘크리트 공간을 보면서 가장 먼저 고민한 건 고객 동선과 직원 동선을 어떻게 분리할 것인가였습니다.
실측 결과, 공간은 4개의 시술실, 스탭실 1개, 샤워실, 로비로 나눌 수 있었어요. 특히 마사지샵의 특성상 고객이 편안하게 휴식할 수 있는 대기 공간이 중요하다고 판단했습니다. 입구에서 로비를 거쳐 시술실로 자연스럽게 연결되는 동선을 설계함으로써 고객의 심리적 안정감을 높였죠.

직원 동선을 최소화하는 것도 중요했어요. 예를 들어, 인포 카운터 옆에 세면 공간과 미니 냉장고를 배치한 건 직원들이 불필요하게 시술실 영역으로 왕래하지 않도록 하기 위함이었습니다. 이런 식으로 동선을 분리하면 운영 효율이 눈에 띄게 올라간다는 걸 실제 현장에서 확인할 수 있어요.
첫인상을 결정하는 인포 공간, 세련된 카운터 디자인
입구를 들어서는 순간 고객이 느끼는 감정이 마사지샵 전체 만족도를 크게 좌우해요. 저희 프로젝트에서는 인포 카운터를 공간의 얼굴로 설계했습니다.
흑경(검은색 광택 마감재)을 사용해 벽체 라운드와 카운터를 일체감 있게 통일했어요. 포세린 타일을 벽면에 시공한 이유는 실용성과 고급스러운 분위기를 동시에 확보하기 위함입니다. 포세린 타일은 습기에 강하고 청소가 쉬우면서도 세련된 느낌을 살릴 수 있는 최고의 소재거든요.

로고가 붙으면 더 고급스러운 느낌이 날 거라 기대했던 이 공간에는 작은 신발장도 배치했습니다. 필요시 신발을 갈아 신을 수 있게 배려한 거죠. 카운터 옆 공간에는 거울과 조명을 활용해 세련된 분위기를 강조했는데, 이렇게 하면 공간이 실제보다 훨씬 넓어 보이는 효과도 있어요.
인포 공간의 실무 팁
마사지샵 인포 공간 설계 시 꼭 고려해야 할 요소들을 정리해봤습니다. 첫째, 카운터 높이는 앉은 고객의 눈높이에 맞춰야 해요. 이렇게 하면 상담할 때 편안함을 높일 수 있습니다. 둘째, 카운터 뒤 직원 공간에는 예약 시스템과 결제 기기, 그리고 휴지나 제품 정도만 배치하는 게 깔끔해요. 셋째, 미니 냉장고와 세면 시설을 따로 마련하면 직원들의 이동 동선을 줄일 수 있어 고객 서비스 질을 높일 수 있습니다.
편안함을 극대화한 로비 공간, 대기 시간도 힐링 시간으로
마사지샵을 방문한 고객들이 시술을 받기 전까지 머무르는 로비 공간이 얼마나 중요한지 저도 이번 프로젝트를 통해 깊이 깨달았습니다. 로비는 단순한 대기 공간이 아니라 마사지샵 전체의 브랜드 이미지를 나타내는 얼굴이거든요.
저희는 로비에 안락한 체어를 배치하고, TV 모니터를 설치했어요. 특별히 사장님이 미리 주문해둔 발 마사지 전용 체어에 맞춰 공간을 계획했습니다. 이렇게 하면 대기 중인 고객도 발 마사지 서비스를 받을 수 있어 운영 매출을 높일 수 있죠.

벽면에 제작한 유리 선반은 홍보물과 제품을 진열하는 기능을 할 뿐 아니라 시각적으로도 고급스러운 느낌을 연출해요. 조명 조도도 신경을 많이 썼습니다. 너무 밝지도, 어둡지도 않게 휴식을 취하기에 적절한 수준으로 조절했죠. 실제로 앉아보니 몸이 자연스럽게 이완되는 느낌이 들더라고요.
편안함을 유도하는 복도 조명, 70%는 조명이 결정한다
마사지샵 인테리어에서 조명이 차지하는 비중을 저는 70%라고 봐요. 같은 공간도 조명에 따라 완전히 다른 분위기가 나기 때문입니다. 시술실로 향하는 복도는 겨우 2-3m의 짧은 공간이지만, 고객이 편안한 마음으로 진입하는 데 매우 중요한 역할을 해요.
복도에는 벽등과 간접조명을 활용해 은은한 빛을 연출했습니다. 조도를 낮춰서 고객의 마음이 차분해지는 느낌을 주도록 설계했죠. 동시에 골드 포인트를 주면서도 모던한 느낌을 유지했어요. 양산마사지샵이지만 고급 스파 같은 분위기를 원했기 때문입니다.

조명을 설계할 때는 색온도도 중요한데, 저희는 따뜻한 백색(3000K 정도)을 사용했어요. 이 온도대는 심리적 안정감을 주면서도 공간을 답답하게 만들지 않아서 마사지샵에 최적화되어 있습니다.
고객 배려가 담긴 부대시설, 차별화된 서비스 공간
마사지샵을 찾는 고객들이 기대하는 것은 단순한 시술만이 아니에요. 편의시설이 얼마나 잘 갖춰져 있는지도 중요한 선택 기준이죠. 1인 샤워실은 고객을 위한 필수 시설인데, 저희는 깔끔한 골드 인테리어로 마무리했습니다.
샤워 부스는 투명 유리를 사용해 공간감을 살렸어요. 좁지 않으면서도 충분한 프라이빗 느낌을 유지할 수 있죠. 투명 유리가 중요한 이유는 실제로 바깥 공간이 보임으로써 폐쇄적인 느낌을 덜어낼 수 있기 때문입니다.

직원들을 위한 공간도 신경을 썼습니다. 원목 침상과 간단한 싱크대, 인덕션과 미니 주방 시설을 배치했어요. 세탁 건조기와 소형 가전도 갖춰서 타올이나 가운을 바로바로 세탁할 수 있도록 했죠. 직원이 편하면 고객 서비스 질도 올라간다는 걸 많이 봐왔거든요.
마사지샵 인테리어 성공의 핵심 포인트 정리
실제 프로젝트를 진행하면서 중요하다고 느낀 부분을 정리해봤습니다.
1. 동선 설계가 모든 것의 출발점이에요
고객 동선과 직원 동선을 명확하게 분리하면 운영 효율이 눈에 띄게 올라갑니다. 이번 프로젝트에서 인포 옆에 세면 공간을 배치한 이유도 직원들이 시술실까지 가지 않아도 손을 씻고 물을 마실 수 있도록 하기 위함이었어요.
2. 조명으로 분위기의 70%를 결정한다
로비는 밝게, 복도는 은은하게, 시술실은 편안하게 조도를 달리 설정하면 전체 공간의 완성도가 높아져요. 같은 마사지샵이라도 조명 설계에 따라 고급 스파처럼 느껴질 수도, 평범한 상가처럼 느껴질 수도 있습니다.
3. 실용성과 고급스러움의 균형을 맞춰야 한다
포세린 타일처럼 청소가 쉬우면서도 고급스러운 소재를 선택하는 게 중요해요. 유리 선반도 진열 기능과 시각적 디자인 요소를 동시에 잡을 수 있는 좋은 예입니다. 마사지샵은 위생이 매우 중요하기 때문에 관리하기 쉬운 소재 선택이 장기적인 만족도를 결정해요.

신축 빈 상가였던 공간이 완전히 달라졌습니다. "오아시스 더풋샵"이라는 이름에 걸맞게 쾌적한 힐링 공간으로 변모했어요. 마사지샵 인테리어는 결국 사람을 위한 공간을 만드는 일입니다. 고객이 편안하게 힐링할 수 있고, 직원들이 효율적으로 일할 수 있는 환경이 제대로 된 마사지샵 인테리어의 시작점이라고 생각합니다.
자주 묻는 질문 (FAQ)
Q1. 마사지샵 인테리어는 보통 얼마나 걸리나요?
빈 상가 기준으로 평면 계획부터 시공 완료까지 보통 4-6주 정도 소요돼요. 다만 전기, 수도 시공이 복잡하거나 자재 수급이 원활하지 않으면 더 길어질 수 있습니다. 사전에 시공사와 일정표를 세밀하게 조율하는 게 중요합니다.
Q2. 마사지샵은 평수별로 몇 개 베드를 배치하는 게 적정한가요?
1개 베드당 최소 3평 이상은 확보하는 게 좋아요. 이 프로젝트처럼 7개 베드 기준이라면 시술 공간만 21평 이상, 로비와 부대시설(샤워실, 스탭실)까지 합치면 30평 이상이 적정합니다. 너무 좁으면 고객 대기 중 답답함을 느끼고, 직원들도 이동 시 불편할 수 있어요.
Q3. 초기 상담 때 사업주가 뭘 준비하면 도움이 될까요?
원하는 베드 개수, 대략적인 예산, 참고하고 싶은 브랜드 이미지 정도면 충분해요. 이 프로젝트의 사장님처럼 손그림 메모지로 간단한 스케치를 그려가는 것도 큰 도움이 됩니다. 전문가가 보면 그것만으로도 니즈를 충분히 파악할 수 있거든요. 원래 사용하려던 장비나 가구가 있다면 미리 사이즈를 재가서 알려주면 공간 배치를 더 정확하게 계획할 수 있습니다.
Viewtory 콘텐츠 - 이 글은 Viewtory에서 자동으로 큐레이션한 트렌드 콘텐츠입니다.
댓글
댓글을 작성하려면 로그인이 필요합니다.